Barndominiums & Metal Buildings
Due to the cost of building and site work combined with utilities, our minimum price for Barndos is $400K to build. Barndominiums are the latest structures now being built on country properties! Is it a barn or a house? We have some sample plans of barndominium metal buildings below that we can price out for you with water well and septic systems included. Most of the projects we have priced out have been coming in at around $125.00–$150.00 per total under-roof square foot for the cost of a metal building with less than 50% of the building as living quarters inside. These barndominium metal buildings can be used for temporary living while waiting on your home to be built and then used as guest quarters after your permanent home is built or as your permanent home.
We do all the design work for FREE if we are your builder!
[ steel ]
Outbuildings
Outbuildings are very versatile in design with endless possibilities. From ‘man caves’ or ‘she sheds’ to outdoor gyms to RV storage, workshops, barns, or garages, we can help you with the design and cost to fit your specific needs.
Steel Construction vs. Traditional Wood Construction
Steel buildings have been around for the past 70 years, and their popularity has grown immensely in the past few decades. Steel construction can be more economical than traditional stick-built construction if you want open shop space, and it is also designed and erected far faster than traditional buildings.
Steel-Framed Buildings Design Considerations
Knowing your steel gauge is very important when shopping for a new building. Cheap “economy” steel buildings use 29 gauge, which is the thinner steel.
Rigid Frame vs. Arch-Style Steel Buildings
Familiarize yourself with steel building styles available on the market before choosing a particular type. The two styles of steel buildings to consider are arch and rigid frame.
Trim and Gutters for Steel Buildings
Use of trim and gutters for your steel building is an important option to consider before beginning your steel building project. Trim is important, as it covers and connects transitional areas of any steel building.
[ Options ]
Metal Buildings
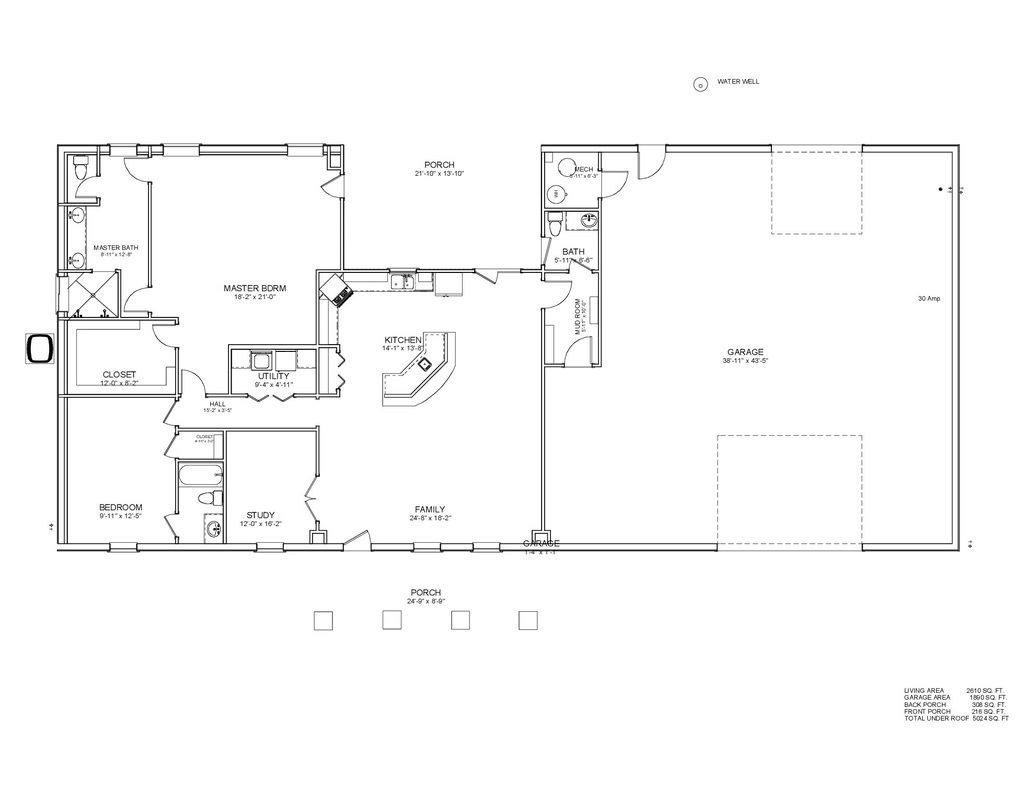
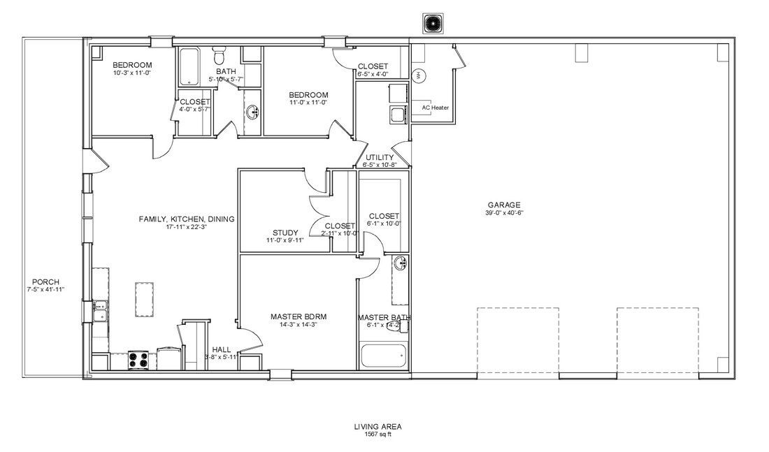
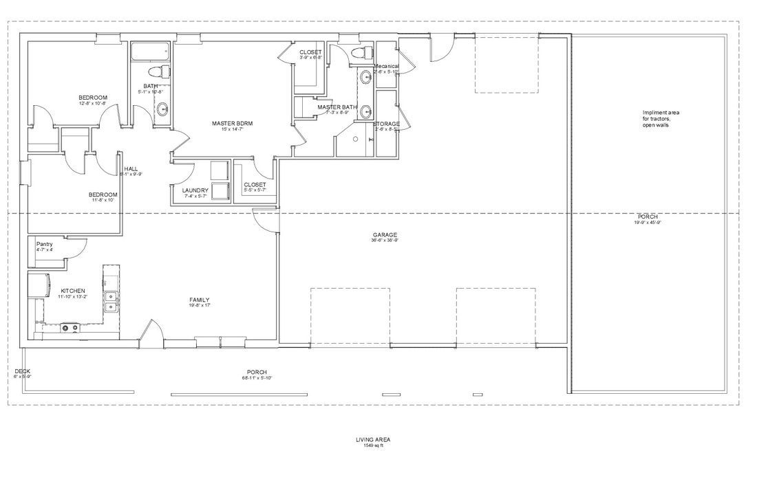
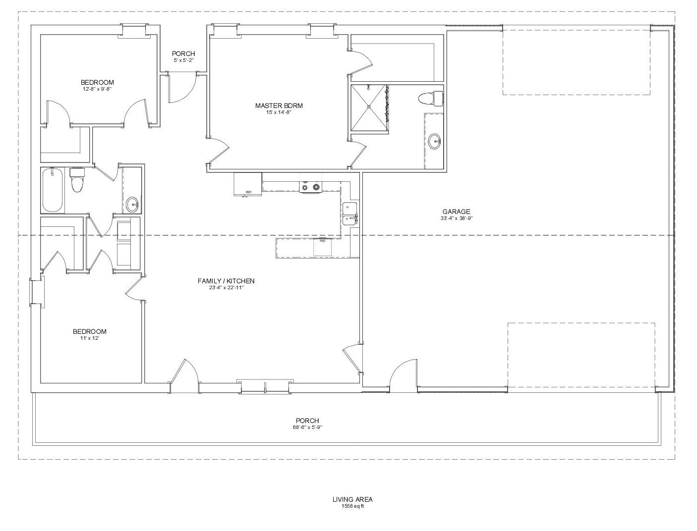
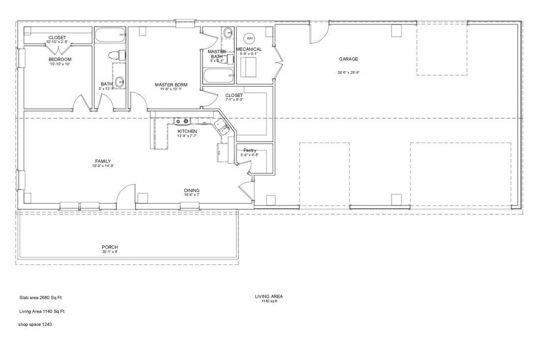
White Rock designs and builds all types of metal buildings, including barndominium metal buildings. We can build you a garage/shop, barn, large commercial building, or whole house. We source out metal building companies to bid on the steel portion of our buildings to allow our customers the flexibility to choose the highest-rated components to utility grade. All buildings are engineered to Texas Windstorm compliance. An example of a metal building turned home is below.
Benefits of Barndominium Steel Buildings
Unmatched Durability for Generations
Barndominium metal buildings are highly appreciated and widely used for their exceptional resistance to environmental challenges. Steel has one of the highest strength-to-weight ratios among construction materials, making it ideal for withstanding heavy snow loads, high winds, and seismic activities. Additionally, it is impervious to common problems such as termite infestations, rot, or mold, which can significantly reduce maintenance costs compared to wood or brick. With proper coatings, steel can resist corrosion for decades, even in coastal or humid environments.
Spacious Open Floor Plans
Barndominiums utilize pole barn construction or steel frames with span structures, allowing for expansive spaces without internal roof supports. This design can accommodate up to 200 feet of building width, even for multi-story structures. As a result, barndos offer flexible, open floor plans without the need for load-bearing walls. Additionally, the interior layout can be easily reconfigured over time, as walls are removable, enabling you to adapt your space to changing needs.
Quick to Build
Barndominium metal buildings are fast to build, which makes them more affordable. On average, it takes about 6-7 months from starting construction to moving in and around 8-18 months from getting permits to completing the home. In comparison, traditional homes usually take 12-14 months to build. This faster timeline saves both time and money on labor.
Strong Warranties
Many barndominium kits come with long-lasting warranties, such as 20-50 years for the steel frame and 20-60 years for the roof, panels, or paint. Some even offer lifetime structural warranties. These guarantees give you extra protection if something goes wrong, adding peace of mind that’s hard to find with traditional homes. These warranties often come on top of the craftsmanship warranties required by law, ensuring your home is covered for many years.
Cost-Effective Construction and Maintenance
Barndominium steel buildings typically cost 30-50% less than conventional homes of similar size, primarily due to reduced labor costs and faster construction timelines. Prefabricated steel components minimize the need for on-site adjustments, cutting down on labor expenses. Additionally, the material’s longevity eliminates the recurring costs associated with repairs or replacements common in wood-framed buildings. According to the Metal Building Manufacturers Association, steel construction projects can see up to a 35% reduction in lifecycle costs compared to traditional methods, making them a financially smart investment.
Fire Resistance
Unlike wood, steel is non-combustible, offering superior fire resistance. This makes steel barndominiums safer in regions prone to wildfires or accidents involving electrical systems. For instance, in California, where wildfire risks are high, steel buildings often meet stringent fire safety regulations and attract lower insurance premiums. Fire resistance also safeguards assets stored within the barndominium, making it an ideal choice for those combining residential and storage spaces.
Resale Value
Steel barndominiums often retain excellent resale value due to their modern appeal, durability, and low upkeep. Buyers are increasingly drawn to the practicality and versatility of these structures. For example, in regions like Texas and Oklahoma, where barndominiums are popular, resale prices frequently match or exceed initial investment costs. The ability to adapt the interior layout to suit different needs also adds to the property’s marketability.
Start Your Project Today
Ready to create one-of-a-kind barndominium metal buildings? Get in touch with White Rock Custom Homes at 281-299-7101 or fill in our contact form today for a free consultation, and let us help you design the perfect space for your home or business!
Frequently Asked Questions
Are Barndominiums Safe in Severe Weather?
Yes, Barndominium metal buildings are highly safe in severe weather due to their steel frames, which offer superior resistance to strong winds, heavy snow, and even earthquakes.
How Much Does It Cost to Build a Barndominium?
The cost of building a Barndominium metal building typically ranges from $100 to $200 per square foot, depending on the location, materials, and finishes chosen. Basic construction of a steel frame with standard interiors is more affordable, while custom designs with higher-end finishes and features can increase the overall cost.
What Permits Are Required for Barndominiums?
In the U.S., building a Barndominium metal building typically requires several permits, including a building permit, electrical permit, plumbing permit, and sometimes mechanical permits for HVAC systems. Zoning permits are necessary to ensure the structure complies with local land-use regulations, especially in residential or agricultural areas. Additionally, environmental permits may be needed depending on the location, particularly for water runoff or soil conditions. Requirements vary by state and municipality, so checking with local authorities is essential.
How Long Does It Take to Build a Barndominium?
Typically, barndominium construction takes between 6 to 12 months, depending on the complexity of the design and weather conditions. Basic Barndominium metal building can be built in as little as 6 months, while more custom or larger builds may take up to a year, including time for permits and inspections.
What Kind of Foundation is Needed for a Barndominium?
Barndominium metal buildings usually require a concrete slab foundation, though pier and beam foundations are also common in certain areas. The slab foundation is the most cost-effective and provides a solid base for the steel frame. The foundation type depends on factors like soil conditions, climate, and the size of the barndominium, with professional evaluations necessary for determining the best option.
Do Barndominiums Require Special Roofing?
Barndominiums do not require special roofing but often feature metal roofing, which is highly durable and weather-resistant. Metal roofs provide excellent protection against the elements, especially in areas prone to heavy rain, snow, or wind. They are low-maintenance, energy-efficient, and have a long lifespan, making them a popular choice for Barndominium metal buildings.














